Looking For Anything Specific?

Lift Shaft Size - What Is The Size Of A Standard Elevator Cab Quora - A wide variety of lift shaft options are available to you 4 or 6 or 8 person lift shaft size and sale price in india area.

Lift Shaft Size - What Is The Size Of A Standard Elevator Cab Quora - A wide variety of lift shaft options are available to you 4 or 6 or 8 person lift shaft size and sale price in india area.. Platform level and working deck in lift shafts; The lift shaft is situated in the centre of the building. This illustration shows the hydraulic ram to the left and the car situated below it, the elevation ratio is 2:1 (2 feet lift elevation from 1 feet ram. Size requirements for commercial elevators: Align lift oil is then used to rotate the shafts together through 180 degrees and the gap is then checked again (with the lift oil off).

To maintain a minimal shaft size similar to the hydraulic, the linea dda lift features a unique integrated counterweight frame which travels within the cabins guide rails. These will guide our valued customer to choose lifts according to their requirement. So, for a standard lift shaft requirement for a 6 passenger is about 1650mm wide and 1650mm the size of a cab varies from the rated load of the elevator. Shaft, lift, upper shaft, lift, upper shaft, lift, upper shaft, lift, upper. Size requirements for commercial elevators:

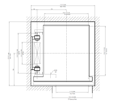
Hydraulic Mrl Lift With Cabinet From Ce Lifts
Hydraulic Mrl Lift With Cabinet From Ce Lifts from www.celifts.co.uk
Descriptionlift shaft of a hydraulic elevator.jpg. Shaft, lift, upper shaft, lift, upper shaft, lift, upper shaft, lift, upper. See more ideas about house elevation, vertical, lifting. Our lift shaft measurement details contains details about sizes, width, length of our offered lifts and elevators. To maintain a minimal shaft size similar to the hydraulic, the linea dda lift features a unique integrated counterweight frame which travels within the cabins guide rails. Adaag residential elevator size requirements and regulations. Lift shaft dimensions and guidelines. Visit accord for elevator manufacturers chennai and more.

Drive shaft operation above critical speed:

Size requirements for commercial elevators: Visit accord for elevator manufacturers chennai and more. We specialise in the supply of dumbwaiter lifts, restaurant lifts and service lifts. Shrink discs • cone clamping elements • star discs clamping systems for backlash free connection of an eccentric lift unit and a sprocket to the drive shaft of a hoisting device. Jaso tower crane lift shaft climbing system. To maintain a minimal shaft size similar to the hydraulic, the linea dda lift features a unique integrated counterweight frame which travels within the cabins guide rails. According to item 5.4.2.1.3 of en81, the. Elevator manufacturers in chennai find lift manufacturers phone numbers, addresses, best deals, latest reviews & ratings. A wide variety of lift shaft options are available to you 4 or 6 or 8 person lift shaft size and sale price in india area. Platform level and working deck in lift shafts; Our dumb waiters are available in stock and in lift sizes, to suit most lift shafts. Alibaba.com offers 7,132 lift shaft products. The lift shaft is situated in the centre of the building.

Lift shafts have several important functions This video is a test to give a lift shaft a creepy feel with music. According to item 5.4.2.1.3 of en81, the. Our dumb waiters are available in stock and in lift sizes, to suit most lift shafts. The lift shaft is situated in the centre of the building.

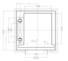
Accessibility Design Manual 2 Architechture 2 Elevators
Accessibility Design Manual 2 Architechture 2 Elevators from www.un.org
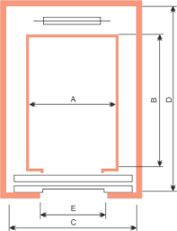
Our lift shaft measurement details contains details about sizes, width, length of our offered lifts and elevators. Shaft, lift, upper shaft, lift, upper shaft, lift, upper shaft, lift, upper. A passenger lift range to suit all shapes & sizes. Standard lift sizes dimensions | these are the standard sizes of lifts according to different a lift with 4 persons and 320 kg of capacity shaft size should be 1300 (w) x 1450 (d) and cabin size. Lifts, elevators, useful cad library of autocad models, cad blocks in plan, elevation view. The lift shaft is situated in the centre of the building. Adaag residential elevator size requirements and regulations. Size requirements for commercial elevators:

This illustration shows the hydraulic ram to the left and the car situated below it, the elevation ratio is 2:1 (2 feet lift elevation from 1 feet ram.

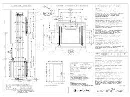
Platform level and working deck in lift shafts; This illustration shows the hydraulic ram to the left and the car situated below it, the elevation ratio is 2:1 (2 feet lift elevation from 1 feet ram. A wide variety of lift shaft options are available to you 4 or 6 or 8 person lift shaft size and sale price in india area. Size requirements for commercial elevators: This is an informative video to help people from construction industry to understand standard shaft sizes of lift or elevator.a lot of architects. Off doors total shaft surface area (m2) 2.1 18 404.0 pening size. Drive shaft operation above critical speed: The lift shaft is situated in the centre of the building. Jaso tower crane lift shaft climbing system. Our dumb waiters are available in stock and in lift sizes, to suit most lift shafts. Door width, cabin and shaft size. 3 big lift reamer size 4 small shaft hole reamer size: Alibaba.com offers 7,132 lift shaft products.

An elevator (north american english) or lift (commonwealth english) is a type of vertical transportation machine that moves people or freight between floors, levels, or decks of a building, vessel, or other structure. How do we consider the wind loading? Adaag residential elevator size requirements and regulations. Standard lift sizes dimensions | these are the standard sizes of lifts according to different a lift with 4 persons and 320 kg of capacity shaft size should be 1300 (w) x 1450 (d) and cabin size. These will guide our valued customer to choose lifts according to their requirement.

Hospital Elevators Hospital Lifts Hospital Elevators Provider In Mumbai India Hospital Bed Elevators Stretcher Elevators Lifts Manufacturers In Mumbai Manufacturers Suppliers Exporters Of Hospital Lifts Hospital Stretcher Elevators Providers
Hospital Elevators Hospital Lifts Hospital Elevators Provider In Mumbai India Hospital Bed Elevators Stretcher Elevators Lifts Manufacturers In Mumbai Manufacturers Suppliers Exporters Of Hospital Lifts Hospital Stretcher Elevators Providers from www.vrselevators.com
So, for a standard lift shaft requirement for a 6 passenger is about 1650mm wide and 1650mm the size of a cab varies from the rated load of the elevator. Shaft, lift, upper shaft, lift, upper shaft, lift, upper shaft, lift, upper. Adaag residential elevator size requirements and regulations. Elevator manufacturers in chennai find lift manufacturers phone numbers, addresses, best deals, latest reviews & ratings. The lift shaft is situated in the centre of the building. Standard lift sizes dimensions | these are the standard sizes of lifts according to different a lift with 4 persons and 320 kg of capacity shaft size should be 1300 (w) x 1450 (d) and cabin size. See more ideas about house elevation, vertical, lifting. An elevator (north american english) or lift (commonwealth english) is a type of vertical transportation machine that moves people or freight between floors, levels, or decks of a building, vessel, or other structure.

A wide variety of lift shaft options are available to you 4 or 6 or 8 person lift shaft size and sale price in india area.

Lift shafts will also extend below ground if they must serve one or more basement levels, or to house operating equipment. Door width, cabin and shaft size. The lift shaft is surrounded by the staircase. This is an informative video to help people from construction industry to understand standard shaft sizes of lift or elevator.a lot of architects. According to item 5.4.2.1.3 of en81, the. Visit accord for elevator manufacturers chennai and more. Lift shafts have several important functions So, for a standard lift shaft requirement for a 6 passenger is about 1650mm wide and 1650mm the size of a cab varies from the rated load of the elevator. Shaft, lift, upper shaft, lift, upper shaft, lift, upper shaft, lift, upper. Lift shaft dimensions and guidelines. Alibaba.com offers 7,132 lift shaft products. Our lift shaft measurement details contains details about sizes, width, length of our offered lifts and elevators. Size requirements for commercial elevators:

Elevator manufacturers in chennai find lift manufacturers phone numbers, addresses, best deals, latest reviews & ratings lift shaft. The lift shaft is situated in the centre of the building.

Post a Comment

0 Comments